




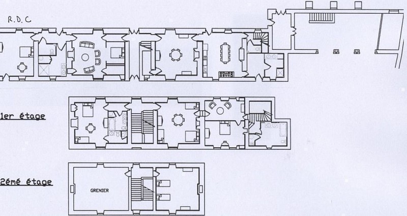
Cette belle demeure de caractère datant de 1804 a été restaurée avec goût et a conservé tout son charme (matériaux de qualité,boiseries,murs peints à la chaux). Cour fermée(1300m²), jardin à la française au sud(1800m²) et piscine(4x10m-prof 1.50m). RDC: cuisine(36m²-m.ondes), s.à manger(35m²), salon(37m²-DVD), ch1(35m²-1lit 160), 2s.d'eau(sèchlinge),wc. Un escalier en pierre mène aux étages. 1erEt: Ch2(28m²-1lit 140,1lit 90,s.d'eau,wc), ch3(36m²-1lit 140,1lit 90), ch4(21m²-1lit 140), biblio, s.de bain(wc). 2ème ét: ch5(30m² sous les combles-2 lits 120). Vallée du Thouet(pistes cyclables), Cités de Caractère (Airvault et St Loup), Puy du Fou 65km.
Téléphone filaire : +33 5 49 77 15 91
Téléphone filaire : +33 5 49 77 15 92
Télécopieur /fax : 05 49 77 15 94
Mél : reservation-gites79@wanadoo.fr
Site web (URL) : www.gites-de-france-deux-sevres.com/location-vacances-deux-sevres-gite-a-airvault-79g623.html
Gîtes de France
4 étoiles
4 épis
Capacité maximum : 15
Nombre de chambres : 6
Cartes de paiement
Chèques bancaires et postaux
Chèques Vacances
Espèces
Virement bancaire
Habitation indépendante
Parking
Cheminée
Four à micro ondes
Lave linge privatif
Lave vaisselle
Télévision
Piscine privative
Location de draps et/ou de linge