




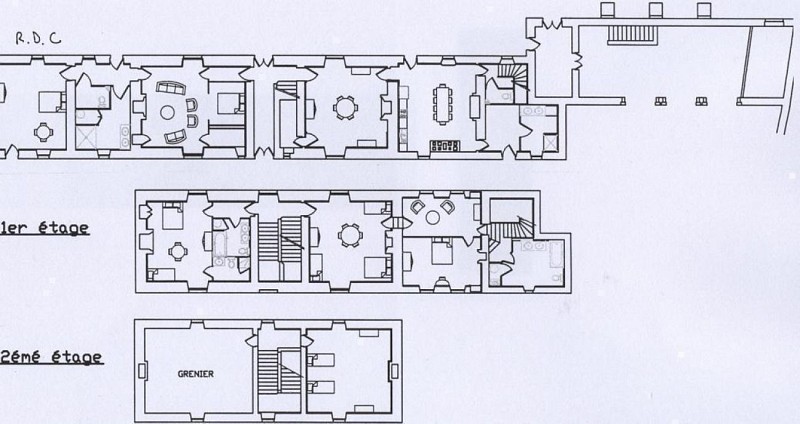
Dit mooie karaktervolle huis uit 1804 is smaakvol gerestaureerd en heeft al zijn charme behouden (kwaliteitsmaterialen, houtwerk, witgekalkte muren). Afgesloten binnenplaats (1300m²), Franse tuin op het zuiden (1800m²) en zwembad (4x10m-prof 1.50m). Begane grond: keuken(36m²-golf), eetkamer(35m²), woonkamer(37m²-DVD), slaapkamer(35m²-1 bed 160), 2 douchekamers(droogruimte), wc. Een stenen trap leidt naar de bovenverdiepingen. 1ste verdieping: slaapkamer 2 (28m²-1 bed 140, 1 bed 90, doucheruimte, wc), slaapkamer 3 (36m²-1 bed 140, 1 bed 90), slaapkamer 4 (21m²-1 bed 140), bibliotheek, badkamer (wc). 2de verdieping: slaapkamer 5 (30m² onder het dak-2 bedden 120). Thouet vallei (fietspaden), Cités de Caractère (Airvault en St Loup), Puy du Fou 65km.
Telefoon : +33 5 49 77 15 91
Telefoon : +33 5 49 77 15 92
Fax : 05 49 77 15 94
Mail : reservation-gites79@wanadoo.fr
Website : www.gites-de-france-deux-sevres.com/location-vacances-deux-sevres-gite-a-airvault-79g623.html
Gîtes de France
4 sterren
4 korenaren
Capacité maximum : 15
Nombre de chambres : 6
Betaal kaarten
Cheques
Chèques Vacances
Kontant geld
Overschrijving
Individuele woning
Parkeerplaats
Haard
Magnetron
Privé wasmachine
Afwasmachine
TV
privatief zwembad
Laken verhuur