




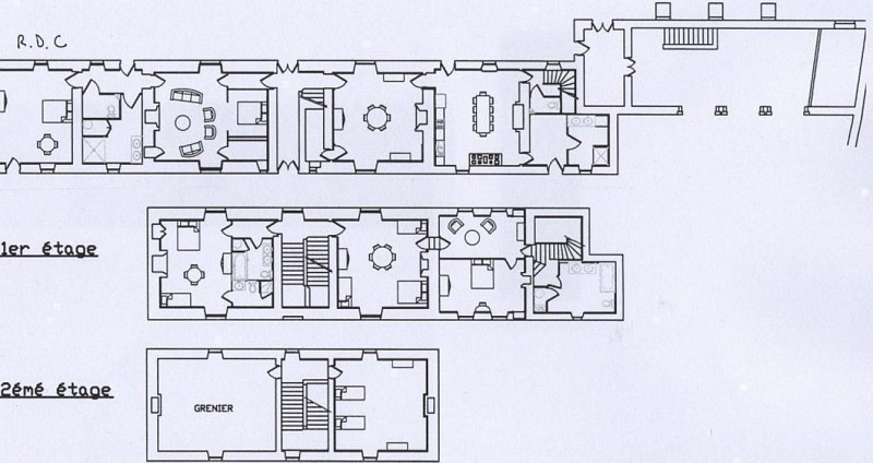
Dieses schöne, charaktervolle Haus aus dem Jahr 1804 wurde geschmackvoll restauriert und hat seinen Charme bewahrt (hochwertige Materialien, Holzverkleidungen, mit Kalkfarbe gestrichene Wände). Geschlossener Hof (1300m²), französischer Garten im Süden (1800m²) und Pool (4x10m-prof 1.50m). EG: Küche(36m²-m.ondes), Esszimmer(35m²), Wohnzimmer(37m²-DVD), Schlafzimmer(35m²-1Bett 160), 2 Badezimmer(Föhn), WC. Eine Steintreppe führt zu den Etagen. stock: Ch2(28m²-1Bett 140, 1Bett 90, Bad/WC), Ch3(36m²-1Bett 140, 1Bett 90), Ch4(21m²-1Bett 140), Biblio, Bad/WC. 2. Stock: Ch5(30m² unter dem Dach-2 Betten 120). Thouet-Tal (Radwege), Cités de Caractère (Airvault und St Loup), Puy du Fou 65km.
Kabeltelefon : +33 5 49 77 15 91
Kabeltelefon : +33 5 49 77 15 92
Fax : 05 49 77 15 94
E-Mail : reservation-gites79@wanadoo.fr
Website (URL) : www.gites-de-france-deux-sevres.com/location-vacances-deux-sevres-gite-a-airvault-79g623.html
Gîtes de France
4 Sterne
4 Ähren
Capacité maximum : 15
Nombre de chambres : 6
Kreditkarten
Bank- und Postschecks
Chèques Vacances
Bargeld
Überweisung
Unabhängige Wohnung
Parkplatz
Funktionierender Kamin
Mikrowellenherd
Private Waschmaschine
Geschirrspüler
Farbfernseher
Privatives Schwimmbad
Wäscheverleih